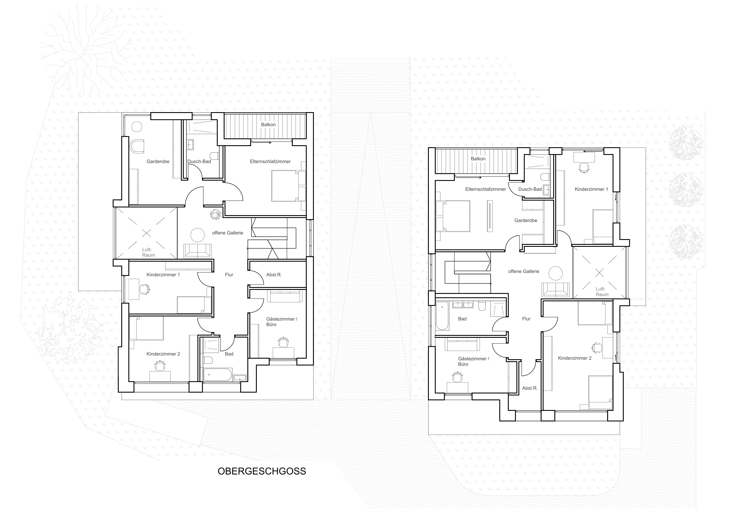
Zwillingshaus 

BAUVORHABEN: Zwei spiegelbildlich gestaltete Wohneinheiten mit  Glasfronten  
KATEGORIE / ART: Neubau, Wohnen  
ORT: Sprockhövel, DE  
FLÄCHE: 880m²  
JAHR: 2022  

 

 

Architekten Wuppertal

 

 

 

 

 

Weitere Beiträge